XL-21 动力箱

首页 / 产品 / 低压开关设备系列 / XL-21 动力箱
XL-21 动力箱

XL-21 动力箱

XL-21 系列动力箱适用于风能、光伏等新能源系统的低压配电与控制,具备防尘、防腐性能,适应户内及半户外使用,支持集中供电与负载管理。

产品优势
电气保护
内置断路器与过载保护装置,避免短路与过流对设备造成损害,确保系统运行稳定。

良好的环境适应性
箱体防尘设计适用于粉尘较多的光伏与风电环境,有效延长设备使用寿命,减少维护频率。

结构紧凑占地少
竖向面板结构提升空间利用率,便于在有限空间内灵活布置。

操作与维护简便
按钮与元件清晰标识,结构直观易懂,降低操作误差;模块化设计便于元件更换与系统维护。

系统兼容性强
支持与光伏逆变器、储能系统、电池管理系统等进行集成,实现集中或分布式控制。

产品特点

防尘箱体结构:高质量钢板外壳,表面耐腐蚀涂层处理,接缝密封,通风口设有防尘滤网。

标准化电气配置:内部接线与元件布局符合低压配电行业标准,支持多回路接入、保护与监控。

应用领域

光伏电站:管理逆变器输出至交流主网接口的电能分配,保障人身与设备安全。

风力电站:用于风机下方或变电环节的辅助配电管理。

储能系统:实现电池与外部负载间电能管理与保护控制。

工业及电力工程:适用于新能源站房、控制室等场所,为监控、通讯及自动化系统提供稳定供电。

X/①L/②(f)/③ -21/④口/⑤

箱式
动力
防尘式
设计序号
主电路方案号
序号 名称 单位 参数
1 主电路额定电压 v 一个C:380
2 辅助电路额定电压 v AC:220,380
3 额定频率  HZ 50
4 额定绝缘电压  v 660
5 额定电流 A ≤800a



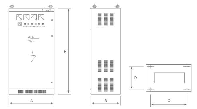
A B C D H
800 (600)可选 500(400)可选 650(450) 450(350) 1800年(1600)可选

新XL-21型动力配电柜外形及安装尺寸图

为隔离开关:型号可选用QSA系列、HR5(箱内操作):
为隔离开关:型号可选用QA、QP系列;
为熔断器:型号可选用RTO、NT00等;
为断路器:型号可选用DZ20、NM1、DZ47、NS、C45等;
为接触器:型号可选用CJ20、B系列、N系列等;
为热继电器:型号可选用JR20、JRS1、NR3系列等;
为互感器:型号可选用LMZJ1-0.5、LMK1-0.66等;

以上产品型均可由客户另行指定。

消息反馈