ZGS11-12 组合美式预装式变电站

首页 / 产品 / 箱式变电站系列 / ZGS11-12 组合美式预装式变电站
ZGS11-12 组合美式预装式变电站

ZGS11-12 组合美式预装式变电站

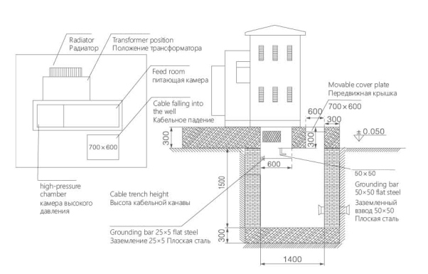
ZGS11-12 系列美式预装式变电站将变压器、高压开关、低压配电及相关电气设备集成于一个封闭式紧凑结构中,是城市、工业及公共设施理想的配电解决方案。

产品优势
占地小,空间利用率高
结构紧凑,将多种功能合并于一体,相比传统站房节省大量空间,适用于街区、住宅区与工业厂区等场所。

快速部署,安装简便
出厂前完成整体组装,现场仅需基础安装与简单接线,土建工程量少,施工周期短,投入使用更高效。

整体成本控制良好
系统集成化设计降低运输、施工与人工成本;后期维护简便,长期运维费用低。

运行更安全
外壳绝缘良好、接地系统完善,确保操作人员安全;高低压分室设计,提升操作隔离度。

性能稳定可靠
配备密封式变压器与全封闭开关柜,有效防止潮气、灰尘侵入,适用于长期运行的复杂户外环境。

产品特点

模块化结构布局:高压、变压器、低压功能区排列合理,便于维护与模块扩展。

全密封结构:油浸式变压器采用密封设计,防止渗漏;外壳材质具备优良防腐性能,喷涂防锈涂层,延长使用寿命。

双重保护系统:高压端配置负荷开关、熔断器、避雷器;低压端集成断路器与计量单元,实现全系统保护。

ZGS/①口/②12/0.4/③(口)/④口/⑤口/⑥

预装式变电站(美式)
设计序号额定电压
高压开关设备配备主开关类别:F-负荷开关;F-R-负荷开关+熔断器
高压开关设备配用操动机构类别:T-弹操机构;S-手动机构
变压器额定容量(kVA)
变压器(KVA)的额定容量
序号 名称 单位 参数
1 额定电压  KV 10/0.4(高压/低压)
2 最高工作电压 KV 12(高压侧)
3 额定频率  Hz 50
4 额定容量 KVA 50-1600
5 1分钟工耐压 K 35
6 雷电冲击电压 KV 75
7 冷却方式  油浸自冷 
8 高压后备熔断器开断电流 KA 50
9 插入式熔断器开断电流 KA 25
10 环境温度  -35~+40
11 线圈允许温升 65
12 无载调压  ±5%±2x2.5%
13 噪声等级  db 50
14 防护等级  IP43

消息反馈